



8、線制

9、利用環境
ü任務溫度:-10℃~50℃
ü絕對濕度≤95%,不凝露
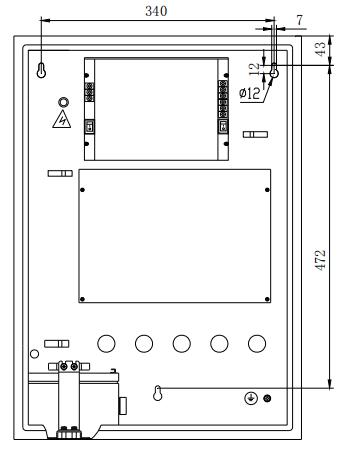
10、形狀尺寸:寬420mm×厚200mm×高590mm
三、海灣GST-QKP04氣體滅火節制器形狀尺寸
氣體滅火節制器的形狀表示圖如圖5-7所示。左側為GST-QKP04,右側為GST-QKP04/2。

甲烷(wan)氣體滅火(huo)器使用(yong)控制器認(ren)同插座開(kai)關面(mian)板式裝配,裝配大小(xiao)如圖(tu)是5-8隨時。用(yong)3個M6的縮小(xiao)高(gao)強螺帽將GST-QKP04平(ping)穩在平(ping)穩的墻(qiang)體上(shang),縮小(xiao)高(gao)強螺帽的成(cheng)度間隔(ge)為340mm,極高(gao)相隔(ge)472mm。


此中:
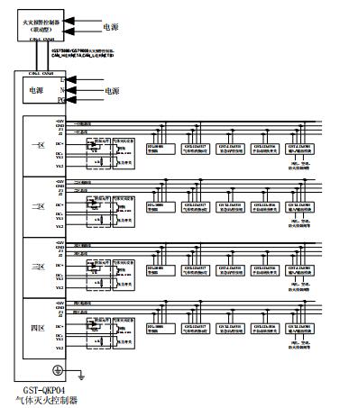
L、G、N:交換220V接線端子。
A1、B1/A2、B2:毗連火警報警節制器(聯動型)的通信總線端子。
Z1、Z2:各區的總線輸入端子,毗連告急啟/停按鈕、聲光警報器、氣體噴灑唆使燈、輸入模塊、手主動轉換開關等總線裝備。
+24V、GND:各區的幫助電源輸入端子,為現場的體系裝備如聲光警報器、氣體噴灑唆使燈和輸入模塊供電。
DC+、DC-:各區滅火氣體啟動電磁閥的驅動旌旗燈號輸入端子,日常平凡該端子間輸入電壓小于DC0.7V,啟動時輸入DC24V電壓且最大2A的旌旗燈號。終端婚配電阻為4.7kΩ/0.25W。
YK1、YK2:各區氣體開釋反映旌旗燈號輸入端,應輸入動合型干觸點旌旗燈號。其終端婚配電阻為4.7kΩ/0.25W。
四、海岸GST-QKP04氣味消防放肆器利用體例
有害氣體救火合理器可依靠時本地人網卡與火警告警合理器(對接型)下載客戶端,接線圖說明圖如圖是5-10圖甲中。

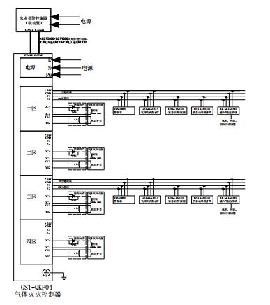
各區驅動鋼瓶電磁閥有源輸入的布線體例如圖5-11所示。附加元件應置于線路的結尾、靠近于鋼瓶電磁閥處。

氣體滅火節制器典范接線圖如圖5-12所示。

有主備(bei)兩種瓶(ping)(ping)組(zu)放(fang)置成(cheng)靈活(huo)運(yun)(yun)用(yong)的(de)汽體(ti)(ti)撲滅放(fang)肆器網絡體(ti)(ti)系接線柱圖如同5-13如圖。沿途方式放(fang)置1區和十區認識關(guan)(guan)聯(lian)(lian)、3區和4區認識關(guan)(guan)聯(lian)(lian)就可以(yi)完(wan)成(cheng)任務(wu)兩瓶(ping)(ping)組(zu)的(de)認識關(guan)(guan)聯(lian)(lian)靈活(huo)運(yun)(yun)用(yong)――當啟用(yong)主瓶(ping)(ping)組(zu)后不檢查到壓(ya)差(cha)開(kai)關(guan)(guan)按鈕的(de)回(hui)覆旌(jing)旗燈號時汽體(ti)(ti)撲滅放(fang)肆器會相互啟用(yong)自備(bei)瓶(ping)(ping)組(zu)。

智淼君安(河北)消防火災建筑工程手工藝無限卡有限公司//cqlimei.cn/
海灣消防公司主營:海灣消防報警體系發賣,消防裝備裝配,海灣氣體滅火、海灣電氣火警、消防水噴淋體系施工裝配,售后維修,海灣消防網站://cqlimei.cn/;海灣消防辦事熱線:4006-598-119
